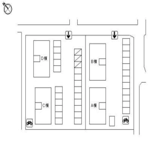
貸<山口市泉都町>アパート(ウィルモア泉都町) A棟A102
保証人不要。13帖広々LDK!対面キッチンの3LDKです!
| お問合せ管理番号 | R1183 |
|---|---|
| 物件タイプ | 賃貸 / アパート |
| 間取り | 3LK/3LDK |
| 家賃 | 72,500円 |
| 礼金 | 72,500円 |
| 共益費 | 2,000円 |
| 駐車場料金 | 2台目2160円 |
| 所在地 | 山口市泉都町8番15-1号 |
| 交通 | NTT山口支店前バス停 徒歩4分 |
| 専有面積 | 68.75 ㎡ ( 20.79坪 ) |
| 小学校 | 湯田小学校 |
| 中学校 | 湯田中学校 |
| 用途 |
|
土地・建物基本情報
| 建物構造 | 軽量鉄骨造(S造) | 総戸数 | |
|---|---|---|---|
| 階建/階 | 2階建 / 1階 (部屋番号:A棟A102) | 築年月 | 2002年06月 (築23年) |
| 構造規模 | - | 改装年月 | |
| 設備 |
|
||
| 備考 | |||
契約詳細
| 家賃 | 72,500円 | ||
|---|---|---|---|
| 更新料 | 21,000円 | ||
| 共益費 | 2,000円 | ||
| 駐車場料金 | 2台目2160円 | ||
| 礼金 | 72,500円 | ||
| 仲介手数料 | 78,300円 | 取引様態 | |




